pn.-pt. 8-20

Dobry wybór wersja lustrzana









W nawiasach podano powierzchnie pomieszczenia netto









Dobry wybór
wersja lustrzanaKoncepcja projektu
Nasi doradcy przedstawią szczegółowe informacje dotyczące projektu.
Projekt wycofany z oferty
Dodatki
Atrakcyjne rabaty
Kompleksowe wsparcie
Gwarancja najniższej ceny
Wygodne zakupy
Zgoda na zmiany w projekcie
Szczegółowa dokumentacja
Rzuty, przekrój, elewacje

W nawiasach podano powierzchnie pomieszczenia netto

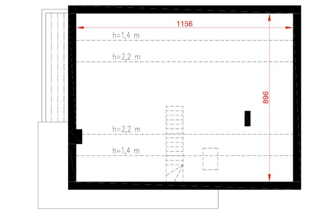
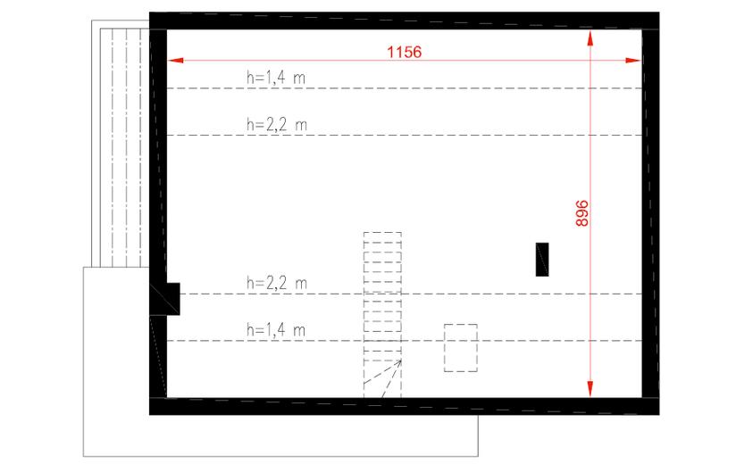
Do indywidualnej adaptacji (56,5 m2 powierzchni użytkowej)






Działka
Wybór działki to jedna z ważniejszych decyzji poprzedzających budowę wymarzonego domu. Oczywiście najważniejsza jest jej lokalizacja, ale trzeba także przeanalizować lokalne ograniczenia wyszczególnione w miejscowym planie zagospodarowania przestrzennego lub w warunkach zabudowy. Często zapisy w w/w dokumentach uniemożliwiają budowę wybranego projektu i trzeba szukać dalej.
Ważne jest także usytuowanie działki i domu względem stron świata, gdyż to właśnie decyduje o stopniu nasłonecznienia poszczególnych pomieszczeń. Dlatego każdy projekt oferujemy w dwóch wersjach: podstawowej oraz lustrzanej, aby można było wybrać najkorzystniejszy układ pomieszczeń względem stron świata, a także względem ukształtowania krajobrazu w otoczeniu działki.

Parametry
Opis projektu
Rodzina A113 Dobry wybór
Projekt Murator A113 Dobry wybór jest dostępny w aranżacjach z dwiema lub trzema sypialniami. Dwie – znajdują się w wariantach A113+AR1 oraz A113+AR2, natomiast trzy – w projekcie A113. Poddasze domów zostało zaprojektowane jako nieużytkowe, jednakże na etapie indywidualnej adaptacji można je przeznaczyć na cele mieszkalne. Dom dedykowany jest parom na starcie, rodzicom z jednym lub dwójką dzieci, a w przypadku adaptacji poddasza – rodzinom liczniejszym lub dwupokoleniowym. Powierzchnia parteru wszystkich projektów wynosi około 96 m2.
Bryła i wygląd
Prosta bryła budynku, zaprojektowana na planie prostokąta, oraz dwuspadowy dach z małymi okapami, to nie tylko niższe koszty budowy, ale również elegancki, nowoczesny i ponadczasowy wygląd. Budynek idealnie wpisze się w każde otoczenie i krajobraz. Do wykończenia elewacji przewidziano dwa materiały: panele drewniane oraz tynk. Zaproponowano dwie kolorystyki – z tynkiem w kolorze białym, który wyraźnie kontrastuje z kolorem drewna, oraz z tynkiem ciemno szarym, który obecnie cieszy się dużą popularnością. Całość zwieńcza prosty dach o szarej bądź grafitowej barwie. Niewątpliwym, kolejnym atutem domu jest strefa zewnętrznego relaksu. Dwustronny taras o powierzchni prawie 33 m2 to świetne miejsce – zarówno do postawienia stołu i spożywania rodzinnych posiłków na świeżym powietrzu, jak i odpoczynku na wygodnych kanapach w towarzystwie kawy i dobrej książki.
Rozwiązania funkcjonalne
Wspólnym mianownikiem rodziny Dobry wybór jest układ funkcjonalny strefy dziennej. Zaplanowano w niej ustawny salon oraz otwartą kuchnię z nowoczesną wyspą. Między strefą wypoczynku a strefą przygotowywania posiłków znajduje się jadalnia z dużym rodzinnym stołem i widokiem na ogród. Z kuchnią sąsiaduje pomieszczenie gospodarcze, które, dzięki takiej lokalizacji, może być jednocześnie praktyczną spiżarnią. Przejście ze strefy dziennej do sypialnianej oddzielono dwuskrzydłowymi drzwiami, które po zamknięciu – skutecznie wyciszą odgłosy rodzinnych biesiad, zapewniając pozostałym domownikom spokojny sen. Jeśli mieszkańcy zdecydują się na zagospodarowanie poddasza, to mogą to zrobić na etapie indywidualnej adaptacji. Propozycja usytuowania schodów w przedsionku, czyli w miejscu niekolidującym z użytkową funkcją parteru, idealnie sprawdzi się dla dwóch rodzin. Parter mogą zająć rodzice z jednym lub dwójką młodszych dzieci, a zaadaptowane poddasze – nowożeńcy. Przestrzeń wyższej kondygnacji, o powierzchni użytkowej 56,5 m2, pozwoli na wygospodarowanie sypialni, łazienki oraz salonu z aneksem kuchennym, czyli drugiego, niezależnego mieszkania.
W projekcie Murator A113 Dobry wybór, część dzienna zajmuje powierzchnię ok. 43 m2, a nocna mieści trzy sypialnie – dwie jednoosobowe o powierzchni 11 m2 każda oraz dwuosobową o powierzchni ponad 12 m2. Przewidziano tu także sporą, bo 5-cio metrową łazienkę z oknem oraz dodatkową toaletę.
W wariancie Murator A113+AR1 Dobry wybór 1, na tej samej powierzchni parteru, zaproponowano dwie sypialnie (19,4 m2 oraz 12,4 m2) i nieco większą strefę dzienną (45,9 m2). Jej powiększony metraż wynika z przesunięcia ścianki działowej znajdującej się między salonem a dużą sypialnią.
W aranżacji Murator A113+AR2 Dobry wybór 2 z dużej sypialni została wydzielona garderoba o powierzchni 3,6 m2. Układ pozostałych pomieszczeń jest tożsamy z wariantem A113+AR1.
Bez względu na to, który układ parteru przypadnie nam do gustu, atuty domu zawsze będą takie same:
– funkcjonalny układ i dobrze wykorzystana powierzchnia,
– prosta bryła z dwuspadowym dachem,
– modna i przyjazna kolorystka,
– komfortowy, słoneczny taras z wyodrębnioną, zacienioną strefą.
Koszty
wytyczenie budynku i roboty ziemne; ławy i stopy fundamentowe; ściany podziemne z izolacjami cieplnymi i przeciwwilgociowymi
ściany murowane zewnętrzne i wewnętrzne; stropy i schody wewnętrzne; konstrukcja dachu z pokryciem, obróbkami, rynnami i rurami spustowymi; podłoża pod posadzki ( np. chudy beton)
okna i drzwi zewnętrzne; bramy garażowe; warstwy wyrównawcze pod posadzki na gruncie i na stropie z izolacjami cieplnymi i przeciwwilgociowymi
*
wewnętrzna instalacja oświetleniowa; instalacja gniazd wtykowych; instalacja siły oraz instalacja odgromowa i inne wewnętrzne instalacje teletechniczne
**
wewnętrzna instalacja wod. - kan. z przyborami sanitarnymi i bateriami; instalacja c.o. z kotłem i grzejnikami, bez kominka; instalacja gazowa bez osprzętu kuchennego; wentylacja mechaniczna ( jeśli występuje)
***
system dociepleń i tynki zewnętrzne z malowaniem; okładziny elewacyjne; balustrady, parapety zewnętrzne i inne roboty zewnętrzne np. taras, opaski wokół domu, schody zewnętrzne
***
tynki wewnętrzne, drzwi i okna wewnętrzne, lekkie ścianki działowe, roboty malarskie, posadzki i inne prace wykończeniowe
* w zależności od ilości punktów elektrycznych na 1m2
** w zależności od ilości punktów sanitarnych na 1m2 oraz ilości (odległości) instalacji rurowej
*** w zależności od rodzaju użytych meteriałów i specyfikacji wykończenia
Zmiany w projekcie
Jeśli zmiany, które chcesz wprowadzić nie są ujęte w powyższym zestawieniu, skontaktuj się z nami. Nasz architekt przeanalizuje i doradzi, które z Twoich propozycji warto wdrożyć. O zgodę na zmiany możesz wystąpić nie tylko w momencie zakupu projektu, ale także później i otrzymasz ją bezpłatnie w ciągu kilku dni.
Dokumentacja (zawartość pakietu projektowego)
3 egzemplarze projektu architektoniczno-budowlanego ze szczegółowym opisem
Dowiedz sie wiecej3 egzemplarze projektu technicznego (konstrukcja, instalacje: wodno-kanalizacyjna, c.o., elektryczna, gazowa (jeśli występują)) ze szczegółowym opisem
Dowiedz sie wiecejCharakterystyka energetyczna (jeśli dotyczy)
Uproszczony ślepy kosztorys – orientacyjne zestawienie materiałów, robocizny i sprzętu z podziałem na etapy budowy
Lista zmian, które można wprowadzić w ramach adaptacji projektu
Dodatki
Pakiet dodatków, który otrzymasz razem z projektem




Masz 30 dni na zwrot i 365 dni na wymianę projektu
Dodatki w dobrej cenie
Dodatki możesz dobrać także w koszyku lub podczas zakupów u naszego doradcy.
Inspiracje


