+48 22 59 05 000

pn.-pt. 8-20

Kontakt i pomoc^
Kontakt i pomoc
Zamów rozmowę
Napisz do nas
Pomoc w kredycie
Bezpłatna analiza działki
logo
ulubione 0
REKLAMA
REKLAMA
AT011

Cris (wielolokalowy/ bliźniak)

wersja lustrzana
Rzuty
Działka
Parametry
Podobne
Zmiany
Dokumentacja
Dodatki
REKLAMA

Rzuty, przekrój, elewacje

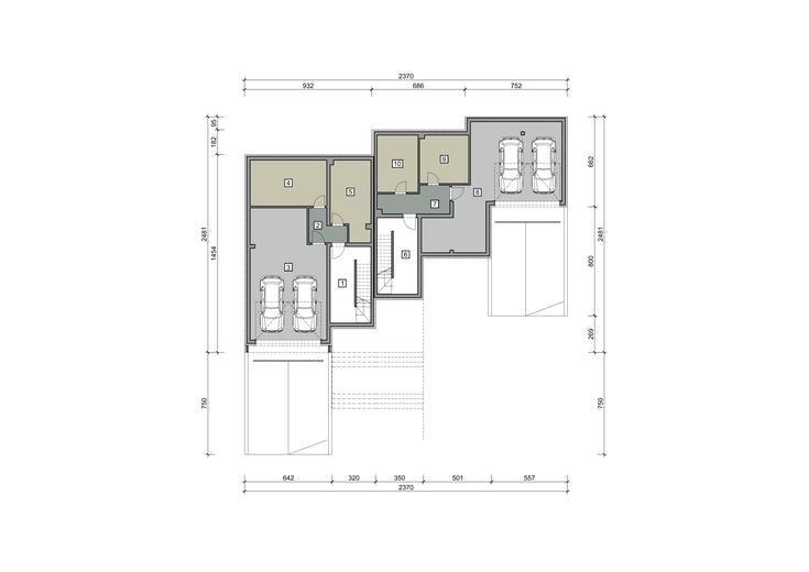
Piwnica
Wersja lustrzana

Lista pomieszczeń uwzględnia podział na dwa lokale A i B. W nawiasach podano pomieszczenia lokalu A (piwnica; pom. 1-5) - 105,78 m2 pow. netto oraz pomieszczenia lokalu B (piwnica; pom. 6-10) - 105,35 m2 pow. netto

Pomieszczenie Użytkowa
1
komunikacja
14,45 m2
2
korytarz
5,31 m2
3
garaż
50,77 m2
4
pom. gosp.
19,11 m2
5
pom. gosp.
16,14 m2
6
komunikacja
14,45 m2
7
korytarz
9,28 m2
8
garaż
56,26 m2
9
pom. gosp.
12,73 m2
10
pom. gosp.
12,63 m2

W nawiasach podano powierzchnie pomieszczenia netto

Parter 175,56 m2
Wersja lustrzana

Lista pomieszczeń uwzględnia podział na dwa lokale A i B. W nawiasach podano pomieszczenia lokalu A (parter; pom. 2-9) - 92,65 m2 pow. użytkowa oraz pomieszczenia lokalu B (parter; pom. 11-17) - 83,01 m2 pow. użytkowa

Pomieszczenie Użytkowa
2
korytarz
8,16 m2
3
sypialnia
10,67 m2
4
sypialnia
13,75 m2
5
łazienka
7,42 m2
6
pokój dzienny + aneks kuchenny
34,8 m2
7
korytarz
1,78 m2
8
sypialnia
13,67 m2
9
pom. gosp.
2,4 m2
11
korytarz
11,85 m2
12
łazienka
5,69 m2
13
kuchnia
8,77 m2
14
pokój dzienny + jadalnia
27,22 m2
15
sypialnia
13,9 m2
16
sypialnia
12,82 m2
17
pom. gosp.
2,66 m2
Razem 175,56 m2
1
komunikacja
16,92 m2
10
komunikacja
16,92 m2

W nawiasach podano powierzchnie pomieszczenia netto

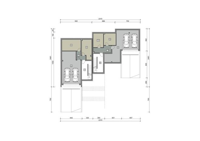
Piętro 174,96 m2
Wersja lustrzana

Lista pomieszczeń uwzględnia podział na dwa lokale A i B. W nawiasach podano pomieszczenia lokalu A (piętro; pom. 2-9) - 92,38 m2 pow. użytkowa oraz pomieszczenia lokalu B (piętro; pom. 11-17) - 82,58 m2 pow. użytkowa

Pomieszczenie Użytkowa
2
korytarz
8,16 m2
3
sypialnia
10,67 m2
4
sypialnia
13,75 m2
5
łazienka
7,39 m2
6
pokój dzienny + aneks kuchenny
34,6 m2
7
korytarz
1,78 m2
8
sypialnia
13,67 m2
9
pom. gosp.
2,36 m2
11
korytarz
11,85 m2
12
łazienka
5,58 m2
13
kuchnia
8,77 m2
14
pokój dzienny + jadalnia
27,04 m2
15
sypialnia
13,9 m2
16
sypialnia
12,82 m2
17
pom. gosp.
2,62 m2
Razem 174,96 m2
1
komunikacja
7,1 m2
10
komunikacja
7,1 m2

W nawiasach podano powierzchnie pomieszczenia netto

Przekrój
Wersja lustrzana
Przekrój
Kąt nachylenia dachu
Wysokość budynku 8,21 m
Wysokość parteru 2,77 m
Wysokość poddasza/piętra 2,77 m
REKLAMA

Działka

Wybór działki to jedna z ważniejszych decyzji poprzedzających budowę wymarzonego domu. Oczywiście najważniejsza jest jej lokalizacja, ale trzeba także przeanalizować lokalne ograniczenia wyszczególnione w miejscowym planie zagospodarowania przestrzennego lub w warunkach zabudowy. Często zapisy w w/w dokumentach uniemożliwiają budowę wybranego projektu i trzeba szukać dalej.

Ważne jest także usytuowanie działki i domu względem stron świata, gdyż to właśnie decyduje o stopniu nasłonecznienia poszczególnych pomieszczeń. Dlatego każdy projekt oferujemy w dwóch wersjach: podstawowej oraz lustrzanej, aby można było wybrać najkorzystniejszy układ pomieszczeń względem stron świata, a także względem ukształtowania krajobrazu w otoczeniu działki.

Wymiary działki
Wymiary działki (szerokość x głębokość), na której możliwe jest wybudowanie domu. Wynikają one z wymiarów budynku powiększonych o wymagane przepisami odległości poszczególnych elementów budynku od granic działki. Rzeczywistą odległość od drogi należy sprawdzić i dostosować do wymogów zawartych w MPZA lub WZ.
31.80 x 29.51 m
Przekrój
Wersja lustrzana

Parametry

Wszystkie dane techniczne dotyczą całego budynku (dwóch segmentów).

Dane Techniczne
Technologia i materiały
Parametry cieplne
Powierzchnia użytkowa
Suma powierzchni pomieszczeń mierzona po wewnętrznym obrysie ścian. Na jej wielkość ma wpływ wysokość pomieszczenia i jest liczona: – w 100% – przy wysokości w świetle powyżej 2,2 m, – w 50% – przy wysokości między 1,4 m a 2,2 m, – pomija się – przy wysokości poniżej 1,4 m. Do powierzchni użytkowej domu nie dolicza się powierzchni niektórych pomieszczeń, np. piwnicy, garażu, kotłowni, strychu.
508,12 m2
Powierzchnia zabudowy
Powierzchnia mierzona po obrysie zewnętrznych krawędzi wykończonego budynku z uwzględnieniem powierzchni nadwieszonych (np. wykusz). Nie dolicza się do niej elementów drugorzędnych (np. schodów zewnętrznych, daszków, ramp) oraz elementów niewystających ponad powierzchnię terenu
257,7 m2
Powierzchnia netto
Powierzchnia wszystkich pomieszczeń budynku mierzona na poziomie podłogi, po wewnętrznym obrysie ścian w stanie wykończonym. Na jej wartość nie wpływa wysokość pomieszczeń.
609,69 m2
Powierzchnia całkowita
Suma powierzchni całkowitych wszystkich kondygnacji (w tym znajdujących się całkowicie lub częściowo poniżej poziomu terenu) mierzona po zewnętrznym obrysie ścian (wraz z ociepleniem) oraz wszystkich elementów wykraczających poza kubaturę, np. tarasy, schody zewnętrzne, balkony, podcienie, zjazdy do garaży, itp.
985,75 m2
Powierzchnia dodatkowa
Dodatkowe powierzchnie niewliczane do powierzchni użytkowej: piwnica + garaż + kotłownia + strych + poddasze do adaptacji.
107,03 m2
Powierzchnia garażu
56,26 m2
Kąt nachylenia dachu
Kubatura
Objętość budynku liczona wraz z przegrodami zewnętrznymi i wewnętrznymi (ścianami, stropem, dachem i podmurówką)
2675 m3
Wysokość budynku
Wysokość mierzona od poziomu terenu przy wejściu do budynku do najwyższego punktu dachu – kalenicy
8,21 m
Wysokość parteru
Podana wartość to wysokość pomieszczeń parteru w stanie wykończonym, mierzona od poziomu posadzki do spodu sufitu.
2,77 m
Wysokość poddasza / piętra
Dla poddasza podano zakres wysokości. Pierwsza podana wartość to minimalna wysokość pomieszczenia w stanie wykończonym (mierzona przy ściance kolankowej lub tzw. przedściance - o ile występuje), druga wartość to maksymalna wysokość pomieszczenia mierzona od poziomu posadzki do płyt wykończeniowych mocowanych do elementów konstrukcyjnych ograniczających przestrzeń pomieszczeń. Dla piętra podana wartość to wysokość pomieszczeń piętra w stanie wykończonym, mierzona od poziomu posadzki do spodu sufitu.
2,77 m
Wymiary budynku
23,8 x 26,36 m
Pokoje (z salonem)
Liczba wszystkich pokoi
14
Łazienki i wc
Suma łazienek i wc
4
Miejsca postojowe
Suma miejsc postojowych (garaż + wiata garażowa)
4
Sezonowość
Całoroczny
REKLAMA

Opis projektu

CRIS to projekt domu jednorodzinnego, czterolokalowego w zabudowie bliźniaczej, przeznaczony dla czterech rodzin. Budynek składa się z segmentów. Segment; ‘A’ i ‘B’. W każdym segmencie zaprojektowano po 2 lokale mieszkalne. Budynek trzykondygnacyjny; piwnica i dwa piętra.
Na pierwszej kondygnacji, (podziemnej) zaprojektowano garaż na 2 miejsca postojowe dla każdego segmentu i komórki lokatorskie. Główne wejścia do budynku prowadzą na parter domu.
Każde mieszkanie ma komfortowo zorganizowaną przestrzeń wnętrza, które składa się z dużego pokoju dziennego połączonego z aneksem kuchennym. Centralną częścią salonu jest kominek, który nadaje wnętrzu niepowtarzalny klimat. Strefę nocną tworzą 2 sypialnie w jednym segmencie (segmencie B) i 3 w drugim, (segmencie A). W każdym mieszkaniu została zaprojektowana wygodna łazienka i pomieszczenie gospodarcze.
Budynek wyróżnia się ciekawą bryłą przykrytą stropodachem oraz prostym wykończeniem elewacji.
Projekt dostępny jest, także w wersji odbicia lustrzanego.
REKLAMA

Zmiany w projekcie

Zobacz zakres zmian, które możesz wprowadzić, w tym projekcie bez zgody autora.
Lista możliwych zmian

Jeśli zmiany, które chcesz wprowadzić nie są ujęte w powyższym zestawieniu, skontaktuj się z nami. Nasz architekt przeanalizuje i doradzi, które z Twoich propozycji warto wdrożyć. O zgodę na zmiany możesz wystąpić nie tylko w momencie zakupu projektu, ale także później i otrzymasz ją bezpłatnie w ciągu kilku dni.

Dokumentacja (zawartość pakietu projektowego)

Dodatki

Pakiet dodatków, który otrzymasz razem z projektem

addon
Teczka inwestora
Do przechowywania niezbędnej dokumentacji
addon
Kupony rabatowe na zakupy
Dzięki którym zaoszczędzisz nawet kilkanaście tysięcy złotych.
addon
Projekty małej architektury
Wybudujesz samodzielnie m.in. domek dla dzieci czy altanę z grillem.
Pamiętaj
dostawa
Wysyłkę projektu ze wszystkimi dodatkami na terenie Polski bierzemy na siebie. Ty wybierasz, gdzie odbierzesz swój projekt. Masz do wyboru kuriera DPD lub punkty Paczkomat InPost 24/7.
zwroty

Masz 30 dni na zwrot i 365 dni na wymianę projektu