+48 22 59 05 000

pn.-pt. 8-20

Kontakt i pomoc^
Kontakt i pomoc
Zamów rozmowę
Umów wideorozmowę
Napisz do nas
Pomoc w kredycie
Bezpłatna analiza działki
logo
ulubione 0
REKLAMA
REKLAMA
AN1801

Celina (1801)

wersja lustrzana
Kupując u nas, zyskujesz więcej

Dodatki

Atrakcyjne rabaty

Kompleksowe wsparcie

Gwarancja najniższej ceny

Wygodne zakupy

Zgoda na zmiany w projekcie

Szczegółowa dokumentacja

Rzuty
Działka
Parametry
Koszty
Podobne
Zmiany
Pliki do pobrania
Dokumentacja
Dodatki
REKLAMA

Rzuty, przekrój, elewacje

Piwnica
Wersja lustrzana
Pomieszczenie Użytkowa
1
pokój hobby (35,35)
2
kotłownia (z pralnią) (9,35)
3
pom. gosp. (8,55)
4
korytarz (12,59)
5
komunikacja (5,38)

W nawiasach podano powierzchnie pomieszczenia netto

Parter 57,55 m2
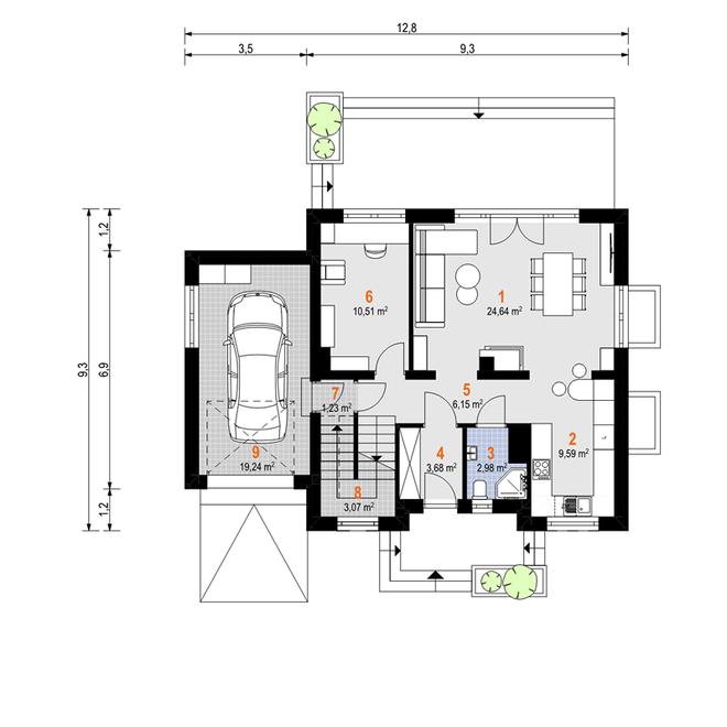
Wersja lustrzana
Pomieszczenie Użytkowa
1
pokój dzienny
24,64 m2
2
kuchnia
9,59 m2
3
łazienka
2,98 m2
4
przedsionek
3,68 m2
5
hol
6,15 m2
6
pokój
10,51 m2
Razem 57,55 m2
7
korytarz (1,23)
8
komunikacja (3,07)
9
garaż (19,24)

W nawiasach podano powierzchnie pomieszczenia netto

Poddasze 49,52 m2
Wersja lustrzana
Pomieszczenie Użytkowa
1
pokój (19,07)
15,16 m2
2
pokój (12,96)
10,2 m2
3
pokój (13,33)
10,78 m2
4
łazienka (8,73)
6,52 m2
5
korytarz
6,86 m2
Razem 49,52 m2
6
komunikacja (3,07)

W nawiasach podano powierzchnie pomieszczenia netto

Przekrój
Wersja lustrzana
Przekrój
Kąt nachylenia dachu 40°
Wysokość budynku 8,69 m
REKLAMA

Działka

Wybór działki to jedna z ważniejszych decyzji poprzedzających budowę wymarzonego domu. Oczywiście najważniejsza jest jej lokalizacja, ale trzeba także przeanalizować lokalne ograniczenia wyszczególnione w miejscowym planie zagospodarowania przestrzennego lub w warunkach zabudowy. Często zapisy w w/w dokumentach uniemożliwiają budowę wybranego projektu i trzeba szukać dalej.

Ważne jest także usytuowanie działki i domu względem stron świata, gdyż to właśnie decyduje o stopniu nasłonecznienia poszczególnych pomieszczeń. Dlatego każdy projekt oferujemy w dwóch wersjach: podstawowej oraz lustrzanej, aby można było wybrać najkorzystniejszy układ pomieszczeń względem stron świata, a także względem ukształtowania krajobrazu w otoczeniu działki.

Wymiary działki
Wymiary działki (szerokość x głębokość), na której możliwe jest wybudowanie domu. Wynikają one z wymiarów budynku powiększonych o wymagane przepisami odległości poszczególnych elementów budynku od granic działki. Rzeczywistą odległość od drogi należy sprawdzić i dostosować do wymogów zawartych w MPZA lub WZ.
20.80 x 17.30 m
pdf dxf

Parametry

Dane Techniczne
Technologia i materiały
Parametry cieplne
Powierzchnia użytkowa
Suma powierzchni pomieszczeń mierzona po wewnętrznym obrysie ścian. Na jej wielkość ma wpływ wysokość pomieszczenia i jest liczona: – w 100% – przy wysokości w świetle powyżej 2,2 m, – w 50% – przy wysokości między 1,4 m a 2,2 m, – pomija się – przy wysokości poniżej 1,4 m. Do powierzchni użytkowej domu nie dolicza się powierzchni niektórych pomieszczeń, np. piwnicy, garażu, kotłowni, strychu.
107,07 m2
Powierzchnia zabudowy
Powierzchnia mierzona po obrysie zewnętrznych krawędzi wykończonego budynku z uwzględnieniem powierzchni nadwieszonych (np. wykusz). Nie dolicza się do niej elementów drugorzędnych (np. schodów zewnętrznych, daszków, ramp) oraz elementów niewystających ponad powierzchnię terenu
109,54 m2
Powierzchnia netto
Powierzchnia wszystkich pomieszczeń budynku mierzona na poziomie podłogi, po wewnętrznym obrysie ścian w stanie wykończonym. Na jej wartość nie wpływa wysokość pomieszczeń.
216,33 m2
Powierzchnia całkowita
Suma powierzchni całkowitych wszystkich kondygnacji (w tym znajdujących się całkowicie lub częściowo poniżej poziomu terenu) mierzona po zewnętrznym obrysie ścian (wraz z ociepleniem) oraz wszystkich elementów wykraczających poza kubaturę, np. tarasy, schody zewnętrzne, balkony, podcienie, zjazdy do garaży, itp.
281,43 m2
Powierzchnia garażu
19,24 m2
Kąt nachylenia dachu
40°
Kubatura
Objętość budynku liczona wraz z przegrodami zewnętrznymi i wewnętrznymi (ścianami, stropem, dachem i podmurówką)
838,46 m3
Wysokość budynku
Wysokość mierzona od poziomu terenu przy wejściu do budynku do najwyższego punktu dachu – kalenicy
8,69 m
Wymiary budynku
9,25 x 12,75 m
Wymiary działki
Wymiary działki (szerokość x głębokość), na której możliwe jest wybudowanie domu. Wynikają one z wymiarów budynku powiększonych o wymagane przepisami odległości poszczególnych elementów budynku od granic działki. Rzeczywistą odległość od drogi należy sprawdzić i dostosować do wymogów zawartych w MPZA lub WZ
20,8 x 17,3 m
Pokoje (z salonem)
Liczba wszystkich pokoi
5
Łazienki i wc
Suma łazienek i wc
2
Miejsca postojowe
Suma miejsc postojowych (garaż + wiata garażowa)
1
Sezonowość
Całoroczny
REKLAMA

Opis projektu

Projekt domu Celina (1801) to elegancki i funkcjonalny dom jednorodzinny, który zaspokoi potrzeby zarówno małych, jak i większych rodzin. Dom o powierzchni 281.43 m², z użytkową powierzchnią 107.07 m², oferuje przestronne i dobrze rozplanowane wnętrza na trzech kondygnacjach: piwnicy, parterze oraz poddaszu użytkowym. Dzięki dwuspadowemu dachowi o nachyleniu 40 stopni, dom zyskuje klasyczny, a zarazem nowoczesny wygląd. Wymiary budynku wynoszą 9.25 x 12.75 m, co sprawia, że idealnie wpasuje się w różnorodne działki budowlane.

Układ pomieszczeń w projekcie Celina (1801)

Na poziomie piwnicy znajdują się pomieszczenia, które mogą pełnić różnorodne funkcje. Do dyspozycji mieszkańców jest pokój hobby, który można zaadaptować na siłownię, pokój gier lub pracownię. Kotłownia z pralnią zapewnia wygodę i praktyczność, a dodatkowe pomieszczenie gospodarcze oraz korytarz i komunikacja ułatwiają codzienne funkcjonowanie. Parter domu Celina (1801) to przestrzeń dzienna, która sprzyja integracji rodziny i gości. Znajduje się tu przestronny pokój dzienny, idealny do wspólnego spędzania czasu. Kuchnia, łazienka, przedsionek, hol, dodatkowy pokój oraz korytarz i komunikacja tworzą harmonijną całość. Garaż o powierzchni 19.24 m² jest integralną częścią domu, co zapewnia wygodę i bezpieczeństwo. Poddasze użytkowe to strefa prywatna, gdzie znajdują się trzy komfortowe pokoje, łazienka, korytarz i komunikacja. Pomieszczenia te można zaaranżować według własnych potrzeb, tworząc sypialnie, pokoje dziecięce lub gabinety.

Dlaczego warto wybrać projekt Celina (1801)?

Projekt domu Celina (1801) to idealne rozwiązanie dla osób ceniących funkcjonalność i estetykę. Dom jest podpiwniczony, co zwiększa jego powierzchnię użytkową i daje dodatkowe możliwości aranżacyjne. Ogrzewanie gazowe zapewnia komfort cieplny i ekonomiczność użytkowania. Dwuspadowy dach nadaje budynkowi klasyczny wygląd, a jego nachylenie 40 stopni pozwala na efektywne odprowadzanie wody deszczowej. Podsumowując, projekt domu Celina (1801) to doskonały wybór dla rodzin poszukujących przestronnego, funkcjonalnego i estetycznego domu. Dzięki przemyślanemu układowi pomieszczeń na trzech kondygnacjach, dom ten spełni oczekiwania nawet najbardziej wymagających mieszkańców. Projekt Celina (1801) dostępny zarówno w wersji podstawowej, jak i lustrzanej.

Koszty

Orientacyjne koszty budowy netto - wycena wskaźnikowa Ceny aktualne na: II kwartał 2025
Jak dokonujemy wyliczeń? icon arrow
Razem (etapy 1-3): 526 700 zł
1. Stan zero
Koszt etapu 143 000 zł
Zakres prac

wytyczenie budynku i roboty ziemne; ławy i stopy fundamentowe; ściany podziemne z izolacjami cieplnymi i przeciwwilgociowymi

2. Stan surowy otwarty
Koszt etapu + 301 700 zł
Zakres prac

ściany murowane zewnętrzne i wewnętrzne; stropy i schody wewnętrzne; konstrukcja dachu z pokryciem, obróbkami, rynnami i rurami spustowymi; podłoża pod posadzki ( np. chudy beton)

3. Stan surowy zamknięty
Koszt etapu + 82 100 zł
Zakres prac

Stan zero (wytyczenie budynku i roboty ziemne; ławy i stopy fundamentowe; ściany podziemne z izolacjami cieplnymi i przeciwwilgociowymi) oraz stan surowy (ściany murowane z zewnętrzne i wewnętrzne; stropy i schody wewnętrzne, konstrukcja dachu z pokryciem, obróbkami, rynnami i rurami spustowymi; podłoża pod posadzki (np. chudy beton), okna i drzwi zewnętrzne; bramy garażowe; warstwy wyrównawcze pod posadzki na gruncie i na stropie z izolacjami cieplnymi i przeciwwilgociowymi).

Razem (etapy 1-3): 526 700 zł
4. Instalacje elektryczne
Koszt etapu od 62,40 do 219,70 zł/m2

*

Zakres prac

wewnętrzna instalacja oświetleniowa; instalacja gniazd wtykowych; instalacja siły oraz instalacja odgromowa i inne wewnętrzne instalacje teletechniczne

5. Instalacje sanitarne
Koszt etapu od 232,70 do 910 zł/m2

**

Zakres prac

wewnętrzna instalacja wod. - kan. z przyborami sanitarnymi i bateriami; instalacja c.o. z kotłem i grzejnikami, bez kominka; instalacja gazowa bez osprzętu kuchennego; wentylacja mechaniczna ( jeśli występuje)

6. Wykończenie zewnętrzne
Koszt etapu od 126,10 do 638,30 zł/m2

***

Zakres prac

system dociepleń i tynki zewnętrzne z malowaniem; okładziny elewacyjne; balustrady, parapety zewnętrzne i inne roboty zewnętrzne np. taras, opaski wokół domu, schody zewnętrzne

7. Wykończenie wewnętrzne
Koszt etapu od 429 do 878,80 zł/m2

***

Zakres prac

tynki wewnętrzne, drzwi i okna wewnętrzne, lekkie ścianki działowe, roboty malarskie, posadzki i inne prace wykończeniowe

* w zależności od ilości punktów elektrycznych na 1m2

** w zależności od ilości punktów sanitarnych na 1m2 oraz ilości (odległości) instalacji rurowej

*** w zależności od rodzaju użytych meteriałów i specyfikacji wykończenia

Zmiany w projekcie

Zobacz zakres zmian, które możesz wprowadzić, w tym projekcie bez zgody autora.
Lista możliwych zmian

Jeśli zmiany, które chcesz wprowadzić nie są ujęte w powyższym zestawieniu, skontaktuj się z nami. Nasz architekt przeanalizuje i doradzi, które z Twoich propozycji warto wdrożyć. O zgodę na zmiany możesz wystąpić nie tylko w momencie zakupu projektu, ale także później i otrzymasz ją bezpłatnie w ciągu kilku dni.

Pliki do pobrania

Obrys działkipdf Pobierz
Obrys działkidxf Pobierz

Dokumentacja (zawartość pakietu projektowego)

Dodatki

Pakiet dodatków, który otrzymasz razem z projektem

addon
Prezent na Święta: Karta 200 zł do Zalando!
Święta tuż-tuż, a my mamy dla Ciebie prezent, który umili czas oczekiwania!
addon
Teczka inwestora
Do przechowywania niezbędnej dokumentacji
addon
Kupony rabatowe na zakupy
Dzięki którym zaoszczędzisz nawet kilkanaście tysięcy złotych.
addon
Projekty małej architektury
Wybudujesz samodzielnie m.in. domek dla dzieci czy altanę z grillem.
Pamiętaj
dostawa
Wysyłkę projektu ze wszystkimi dodatkami na terenie Polski bierzemy na siebie. Ty wybierasz, gdzie odbierzesz swój projekt. Masz do wyboru kuriera DPD lub punkty Paczkomat InPost 24/7.
zwroty

Masz 30 dni na zwrot i 365 dni na wymianę projektu