+48 22 59 05 000

pn.-pt. 8-20

Kontakt i pomoc^
Kontakt i pomoc
Zamów rozmowę
Napisz do nas
Pomoc w kredycie
Bezpłatna analiza działki
logo
ulubione 0
REKLAMA
REKLAMA
C410e

Budynek mieszkalny - Alternatywy 9

wersja lustrzana
Rzuty
Parametry
Podobne
Zmiany
Dokumentacja
Dodatki
REKLAMA

Rzuty, przekrój, elewacje

Parter 123,1 m2
Wersja lustrzana

Mieszkanie 1 (pom. 4-8) - 45,59 m2. Mieszkanie 2 (pom. 9-12) - 31,77 m2. Mieszkanie 3 (pom. 13-17) - 45,74 m2

Pomieszczenie Użytkowa
4
korytarz
7,27 m2
5
aneks kuchenny
9,62 m2
6
pokój dzienny
14,32 m2
7
sypialnia
8,82 m2
8
łazienka
5,56 m2
9
korytarz
5,44 m2
10
aneks kuchenny
10,64 m2
11
pokój dzienny
10,83 m2
12
łazienka
4,86 m2
13
korytarz
7,9 m2
14
aneks kuchenny
9,62 m2
15
pokój dzienny
14,14 m2
16
sypialnia
8,74 m2
17
łazienka
5,34 m2
Razem 123,1 m2
1
przedsionek
4,04 m2
2
schody + hol
24,96 m2
3
śmietnik
4,82 m2

W nawiasach podano powierzchnie pomieszczenia netto

Piętro 138,24 m2
Wersja lustrzana
Podstawowy
Inne
1

Mieszkanie 4 (pom. 2-7): 52,95 m2. Mieszkanie 5 (pom. 8-11): 32,12 m2. Mieszkanie 6 (pom. 12-17): 53,16 m2

Pomieszczenie Użytkowa
2
korytarz
7,27 m2
3
aneks kuchenny
9,47 m2
4
pokój dzienny
14,32 m2
5
sypialnia
8,82 m2
6
sypialnia
7,52 m2
7
łazienka
5,56 m2
8
korytarz
5,5 m2
9
aneks kuchenny
9,11 m2
10
pokój dzienny
12,55 m2
11
łazienka
4,96 m2
12
korytarz
7,9 m2
13
aneks kuchenny
9,62 m2
14
pokój dzienny
14,14 m2
15
sypialnia
8,74 m2
16
sypialnia
7,42 m2
17
łazienka
5,34 m2
Razem 138,24 m2
1
schody + hol
25,55 m2

W nawiasach podano powierzchnie pomieszczenia netto

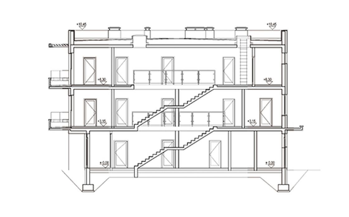
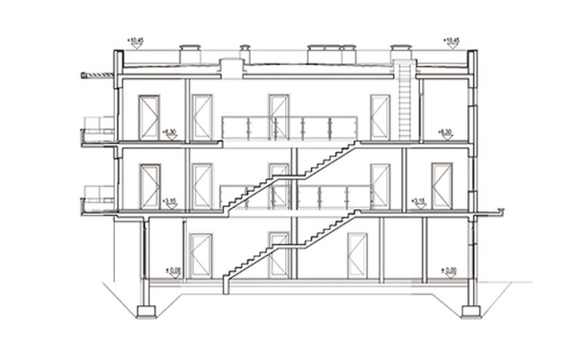
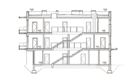
Przekrój
Wersja lustrzana
Przekrój
REKLAMA

Parametry

Dane Techniczne
Technologia i materiały
Parametry cieplne
Powierzchnia użytkowa
Suma powierzchni pomieszczeń mierzona po wewnętrznym obrysie ścian. Na jej wielkość ma wpływ wysokość pomieszczenia i jest liczona: – w 100% – przy wysokości w świetle powyżej 2,2 m, – w 50% – przy wysokości między 1,4 m a 2,2 m, – pomija się – przy wysokości poniżej 1,4 m
392,16 m2
Powierzchnia zabudowy
Powierzchnia mierzona po obrysie zewnętrznych krawędzi wykończonego budynku z uwzględnieniem powierzchni nadwieszonych (np. wykusz). Nie dolicza się do niej elementów drugorzędnych (np. schodów zewnętrznych, daszków, ramp) oraz elementów niewystających ponad powierzchnię terenu
200,8 m2
Powierzchnia netto
Powierzchnia wszystkich pomieszczeń budynku mierzona na poziomie podłogi, po wewnętrznym obrysie ścian w stanie wykończonym. Na jej wartość nie wpływa wysokość pomieszczeń.
484,5 m2
Kąt nachylenia dachu
Kubatura
Objętość budynku liczona wraz z przegrodami zewnętrznymi i wewnętrznymi (ścianami, stropem, dachem i podmurówką)
2089,36 m3
Wymiary budynku
12,14 x 16,54 m
Sezonowość
Część mieszkalna lub socjalno-biurowa do użytku w sezonie letnim
Całoroczny
REKLAMA

Opis projektu

Budynek mieszkalny - Alternatywy 9, to trzykondygnacyjny budynek z dziewięcioma mieszkaniami
REKLAMA

Zmiany w projekcie

Zobacz zakres zmian, które możesz wprowadzić, w tym projekcie bez zgody autora.
Lista możliwych zmian

Jeśli zmiany, które chcesz wprowadzić nie są ujęte w powyższym zestawieniu, skontaktuj się z nami. Nasz architekt przeanalizuje i doradzi, które z Twoich propozycji warto wdrożyć. O zgodę na zmiany możesz wystąpić nie tylko w momencie zakupu projektu, ale także później i otrzymasz ją bezpłatnie w ciągu kilku dni.

Dokumentacja (zawartość pakietu projektowego)

Dodatki

Pakiet dodatków, który otrzymasz razem z projektem

addon
Teczka inwestora
Do przechowywania niezbędnej dokumentacji
addon
Kupony rabatowe na zakupy
Dzięki którym zaoszczędzisz nawet kilkanaście tysięcy złotych.
addon
Projekty małej architektury
Wybudujesz samodzielnie m.in. domek dla dzieci czy altanę z grillem.
Pamiętaj
dostawa
Wysyłkę projektu ze wszystkimi dodatkami na terenie Polski bierzemy na siebie. Ty wybierasz, gdzie odbierzesz swój projekt. Masz do wyboru kuriera DPD lub punkty Paczkomat InPost 24/7.
zwroty

Masz 30 dni na zwrot i 365 dni na wymianę projektu