+48 22 59 05 000

pn.-pt. 8-20

Kontakt i pomoc^
Kontakt i pomoc
Zamów rozmowę
Umów wideorozmowę
Napisz do nas
Pomoc w kredycie
Bezpłatna analiza działki
logo
ulubione 0
REKLAMA
REKLAMA
GMC46

Budynek garażowo-magazynowy GMC46

wersja lustrzana
Kupując u nas, zyskujesz więcej

Dodatki

Atrakcyjne rabaty

Kompleksowe wsparcie

Gwarancja najniższej ceny

Wygodne zakupy

Zgoda na zmiany w projekcie

Szczegółowa dokumentacja

Rzuty
Parametry
Podobne
Zmiany
Pliki do pobrania
Dokumentacja
Dodatki
REKLAMA

Rzuty, przekrój, elewacje

Parter
Wersja lustrzana
Pomieszczenie Użytkowa
1
pom. garażowo-magazynowe
33,8 m2
2
pom. garażowo-magazynowe
33,8 m2
3
pom. gosp.
33,9 m2
Razem 101,5 m2

W nawiasach podano powierzchnie pomieszczenia netto

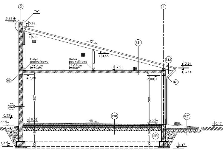
Przekrój
Wersja lustrzana
Przekrój
Kąt nachylenia dachu 15°
Wysokość budynku 6,16 m
Wysokość parteru 3,16 m
REKLAMA

Parametry

Dane Techniczne
Technologia i materiały
Parametry cieplne
Powierzchnia użytkowa
Suma powierzchni pomieszczeń mierzona po wewnętrznym obrysie ścian. Na jej wielkość ma wpływ wysokość pomieszczenia i jest liczona: – w 100% – przy wysokości w świetle powyżej 2,2 m, – w 50% – przy wysokości między 1,4 m a 2,2 m, – pomija się – przy wysokości poniżej 1,4 m
101,5 m2
Powierzchnia zabudowy
Powierzchnia mierzona po obrysie zewnętrznych krawędzi wykończonego budynku z uwzględnieniem powierzchni nadwieszonych (np. wykusz). Nie dolicza się do niej elementów drugorzędnych (np. schodów zewnętrznych, daszków, ramp) oraz elementów niewystających ponad powierzchnię terenu
117 m2
Powierzchnia netto
Powierzchnia wszystkich pomieszczeń budynku mierzona na poziomie podłogi, po wewnętrznym obrysie ścian w stanie wykończonym. Na jej wartość nie wpływa wysokość pomieszczeń.
101,5 m2
Kąt nachylenia dachu
15°
Kubatura
Objętość budynku liczona wraz z przegrodami zewnętrznymi i wewnętrznymi (ścianami, stropem, dachem i podmurówką)
588,4 m3
Wysokość budynku
Wysokość mierzona od poziomu terenu przy wejściu do budynku do najwyższego punktu dachu – kalenicy
6,16 m
Wysokość parteru
Podana wartość to wysokość pomieszczeń parteru w stanie wykończonym, mierzona od poziomu posadzki do spodu sufitu.
3,16 m
Wymiary budynku
13 x 9 m
Szerokość wjazdu
Szerokość i wysokość otworu mierzona w świetle ścian (w stanie wykończonym)
2,6 m
Wysokość wjazdu
Szerokość i wysokość otworu mierzona w świetle ścian (w stanie wykończonym)
3 m
REKLAMA

Opis projektu

Budynek garażowo-magazynowy zaprojektowany w technologii murowej, z dwoma przestronnymi miejscami postojowymi, przewidziany także dla pojazdów o większych gabarytach (np. maszyn rolniczych). Zaprojektowano w nim także duże dodatkowe pomieszczenie gospodarcze, dostępne bezpośrednio z zewnątrz - doskonałe miejsce na przydomowy warsztat lub niewielki magazyn. W ramach indywidualnej adaptacji układ wnętrza można dostosować do indywidualnych potrzeb właścicieli. Kształt dachu oraz bryła umożliwia bliźniaczenie lub dobudowanie do już istniejących budynków. Może stanowić idealne zaplecze garażowo-gospodarcze np. do prowadzonej działalności gospodarczej. Projekty garaży i budynków gospodarczych z Kolekcji Muratora dostępne są także w wersji lustrzanego odbicia (nie dotyczy budynków symetrycznych).

Zmiany w projekcie

Zobacz zakres zmian, które możesz wprowadzić, w tym projekcie bez zgody autora.
  1. Zmienić przeznaczenie i nazwę obiektu.
  2. Zmienić funkcję pomieszczeń.
  3. Dostosować budynek do przyjętych rozwiązań technologicznych i wyposażenia.
  4. Zastosować inne materiały budowlane, instalacyjne i wykończeniowe.
  5. Zmienić usytuowanie ścian wewnętrznych (konstrukcyjnych i niekonstrukcyjnych), a także otworów drzwiowych wewnątrz budynku.
  6. Zlikwidować, doprojektować lub zmienić usytuowanie kominów (dymowych, spalinowych, wentylacyjnych).
  7. Zwiększyć lub zmniejszyć wymiary zewnętrzne (obrys) budynku wobec podanych w projekcie.
  8. Zwiększyć lub zmniejszyć wysokość budynku, maksymalnie o 10%, w szczególności można zmienić:

    • a) poziom posadzki parteru nad terenem projektowanym (ale nie więcej niż o 30 cm),
      b) wysokość kondygnacji,
      c) wysokość ścianki kolankowej (ale nie więcej niż o dwa pustaki lub bloczki oraz pod warunkiem zmiany wysięgu okapów dachu),
      d) kąt nachylenia dachu.
  9. Wykonać podpiwniczenie całości lub części budynku.
  10. Zmienić geometrię dachu (m.in. liczbę połaci dachowych) oraz zwiększyć lub zmniejszyć wysięg okapów dachowych.
  11. Zmienić usytuowanie i geometrię schodów wewnętrznych (jeśli występują).
  12. Zlikwidować lub doprojektować antresolę (jeśli występuje).
  13. Zmienić przekrój filarów zewnętrznych i wewnętrznych (jeśli występują).
  14. Wprowadzić zmiany w układzie okien i drzwi na elewacji (przesunąć, zlikwidować lub doprojektować dodatkowe) oraz zmienić wymiary i podziały okien, drzwi i bram garażowych (jeśli występują).
  15. Zlikwidować lub doprojektować dodatkowe wejścia do budynku.
  16. Zlikwidować, dodać lub przeprojektować lukarny, wole oczka, okna połaciowe, wyłazy dachowe, itp. (jeśli występują).
  17. Zastosować pustaki szklane (luksfery).
  18. Zlikwidować, dodać lub przeprojektować (m.in. zwiększyć albo zmniejszyć) garaż.
  19. Zlikwidować lub doprojektować dodatkowe elementy zewnętrzne takie jak: balkony, tarasy, wykusze, ogrody zimowe, ganki, werandy, wiaty, zadaszenia tarasów.
  20. Zmienić kolorystykę elewacji i dachu.
  21. Przeprojektować instalacje: elektryczne, gazową, wodno-kanalizacyjną oraz grzewczą (m.in. dostosować do innego źródła energii).
  22. Zaprojektować wentylację mechaniczną.
Dokonywane zmiany należy nanieść na oryginale projektu gotowego w widoczny sposób, trwałą techniką graficzną lub wykonać rysunki zamienne.
"> Lista możliwych zmian

Jeśli zmiany, które chcesz wprowadzić nie są ujęte w powyższym zestawieniu, skontaktuj się z nami. Nasz architekt przeanalizuje i doradzi, które z Twoich propozycji warto wdrożyć. O zgodę na zmiany możesz wystąpić nie tylko w momencie zakupu projektu, ale także później i otrzymasz ją bezpłatnie w ciągu kilku dni.

Pliki do pobrania

Rysunki szczegółowepdf Pobierz

Dokumentacja (zawartość pakietu projektowego)

Dodatki

Pakiet dodatków, który otrzymasz razem z projektem

addon
Teczka inwestora
Do przechowywania niezbędnej dokumentacji
addon
Poradnik Zbuduj dom
192 strony praktycznych porad dot. budowy domu
addon
Kupony rabatowe na zakupy
Dzięki którym zaoszczędzisz nawet kilkanaście tysięcy złotych.
addon
Projekty małej architektury
Wybudujesz samodzielnie m.in. domek dla dzieci czy altanę z grillem.
Pamiętaj
dostawa
Wysyłkę projektu ze wszystkimi dodatkami na terenie Polski bierzemy na siebie. Ty wybierasz, gdzie odbierzesz swój projekt. Masz do wyboru kuriera DPD lub punkty Paczkomat InPost 24/7.
zwroty

Masz 30 dni na zwrot i 365 dni na wymianę projektu